Uffici, Laboratori e Negozi in vendita 83 m², Rosignano Marittimo, località Rosignano Solvay

Toscana Livorno Rosignano Marittimo Rosignano Solvay Rif. f0001
+

fondo commeciale zona centrale

Prezzo
€ 75.000
Contratto
Vendita
Tipologia
Uffici, Laboratori e Negozi
Tipo di Proprietà
Intera proprietà
Destinazione
Commerciale
Regione
Toscana
Provincia
Livorno
Comune
Rosignano Marittimo
Località
Rosignano Solvay
Superficie
83 m²
Locali
2
Bagni
1
Bagno per Disabili
No

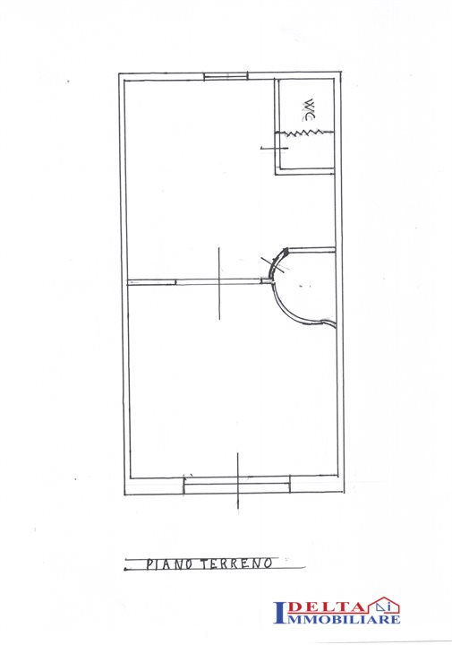
ROSIGNANO SOLVAY Vendesi fondo commerciale in zona di ottimo passaggio affacciato su strada principale con facilità di parcheggio. Il locale è completo di servizio igienico ed è già predisposto per essere collegato con scala interna, al magazzino situato nel seminterrato ( e perfettamente coincidente con la pianta del fondo) . La Superficie del fondo è di circa 43 mq netti. mentre la superficie del magazzino è di 40mq netti . Il fondo è dotato di bagno e ripostiglio attualmente è suddiviso in 2 vani ma facilmente utilizzabile in open space. L'immobile è dotato di condizionatori caldo/freddo ..Si accede al magazzino seminterrato anche da corte condominiale situata sul retro dell'edificio tramite cancello carrabile. Su tale corte è consentito il ricovero moto e cicli . Prezzo 75.000,00 € rif. F0001

Classe Energetica: kWh/m3

Caratteristiche

Condizioni: buone condizioni
Riscaldamento: Autonomo
Tipo di Impianto: Ad aria
Alimentazione Riscaldamento: Elettrica
Condizionatore: Autonomo
Tipo Condizionatore: Freddo/Caldo
Parcheggio Bici: Si
 
Immobile Libero: Si
Piano: Piano Terra - piani edificio 2
Immobile a Reddito: No
Accesso per Disabili: No
Portineria: No
Controllo Accessi: No
 
Giardino m2: Comune
Terrazzo: No
Balcone: No
 
Disposizione Interni: Divisi da pareti
Esposizione: Sud
Infissi esterni: Vetro / Legno
 
Ascensore: No
Allarme: Si
Porta Blindata: No
Pavimento Flottante: No
Controsoffitto: Si
 
Rilavatore Antincendio: No
Antincendio a Pioggia: No
Antincendio a Idranti: No
Porta Tagliafuoco: No
Uscita di Emergenza: No
Luci di Emergenza: No
 
Giardino
Cantina

Planimetrie

fondo commeciale zona centrale - 1
fondo commeciale zona centrale - 2

Mappa